Vieille ville

Duplex en vieille-ville

Photo 1 de l'annonce 2190.440020
Vieille ville

Duplex en vieille-ville

CHF 3'930.- / mois
+ Charges : CHF 350.-

Grand-Rue 10, 1204 Genève

Situé au cœur de la Vieille-Ville, proche des transports publics et de toutes les commodités.

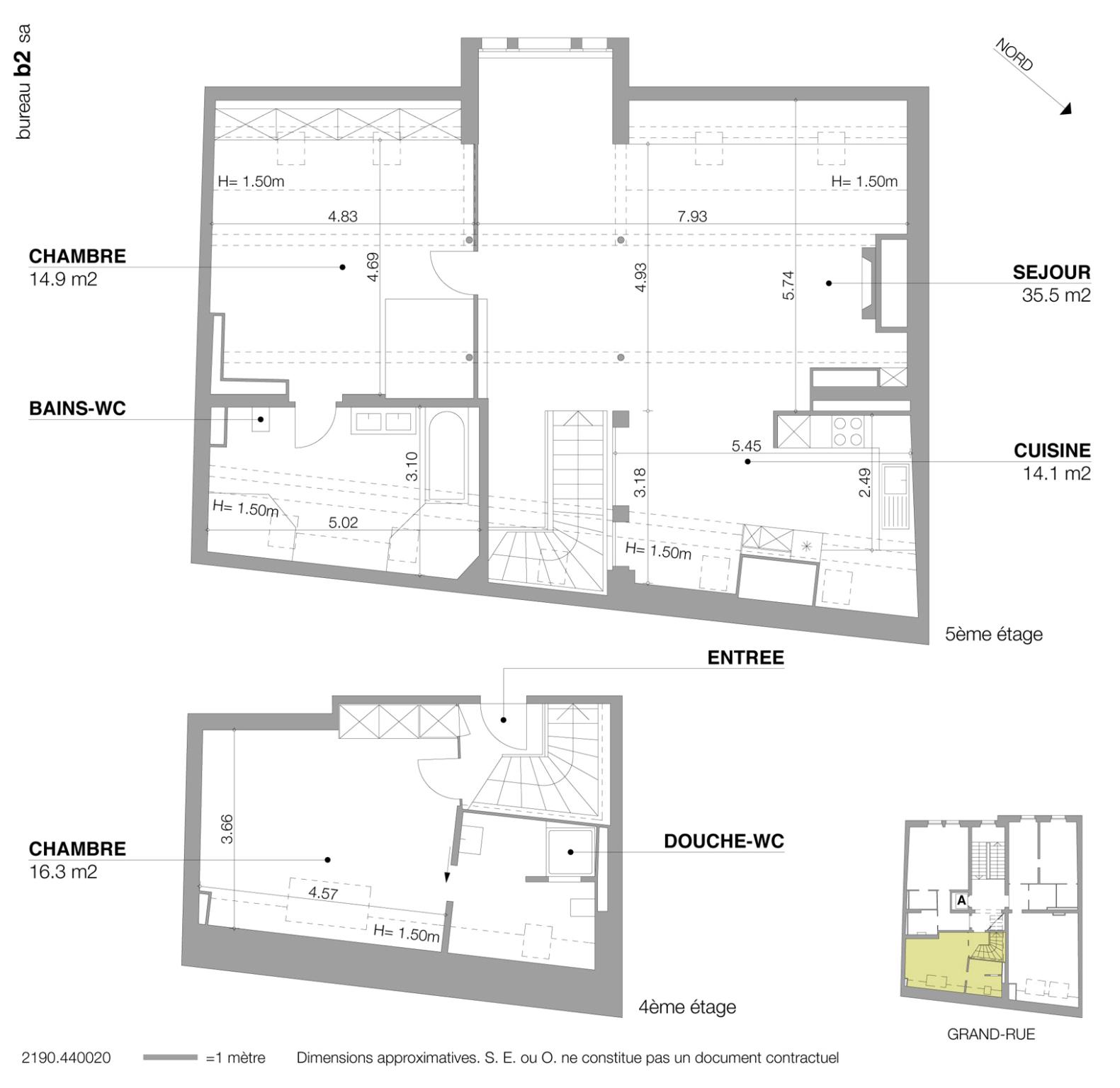
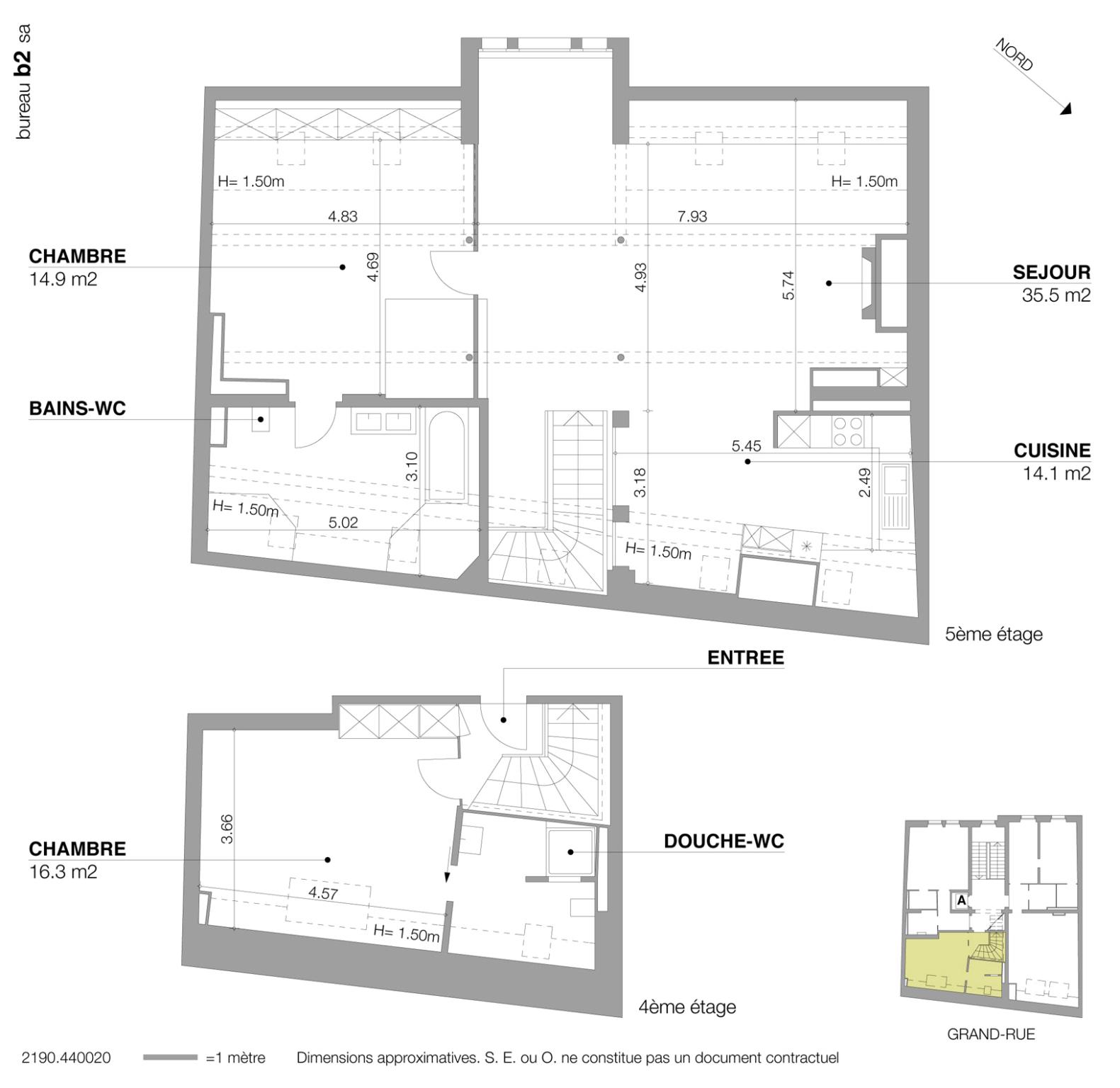
Ce bel appartement en duplex se distribue comme suit :

4ème étage : Entrée, une chambre, salle de douche avec wc et raccordement pour le lave-linge/sèche-linge.

5ème étage : Séjour, cuisine entièrement équipée (réfrigérateur, congélateur, plaques, four, hotte, lave-vaisselle), une seconde chambre avec salle de bains et wc attenants.

Aucune cave à disposition.

Charges mensuelles : CHF 350.- en sus.

Disponibilité : Immédiatement.
Lire la suite
Photo 2 de l'annonce 2190.440020
Photo 3 de l'annonce 2190.440020

Une atmosphère chaleureuse au cœur de l’histoire

Des volumes bien pensés, répartis sur deux niveaux avec ses 105 m2

Plan 1
Photo 4 de l'annonce 2190.440020

Une adresse de prestige au cœur de la Vieille-Ville

  • Ascenseur
  • Cheminée
  • Salle de bains / toilettes
  • Salle de douche / toilettes
  • Centre ville
  • Commerces
  • Musée
  • Restaurant(s)
  • Cuisine équipée
  • Digicode
  • Proche Transports publics
  • Fibre optique
Localiser sur google map
Photo 5 de l'annonce 2190.440020

Vivre la Vieille-Ville dans toute son authenticité

Muriel Abegg-Ghoulem

Laissez-vous guider

Muriel Abegg-Ghoulem vous guide vers le bien qui vous ressemble.