Plainpalais
Duplex en attique avec rooftop
CHF 7'800.- / mois
+ Charges :
CHF
338.-
REF. 0520.460010
Situé en plein cœur du célèbre quartier des Bains à Plainpalais, proche du MAMCO, du Patek Philippe Museum, de l'Université, des écoles, des transports publics et de toutes les commodités.
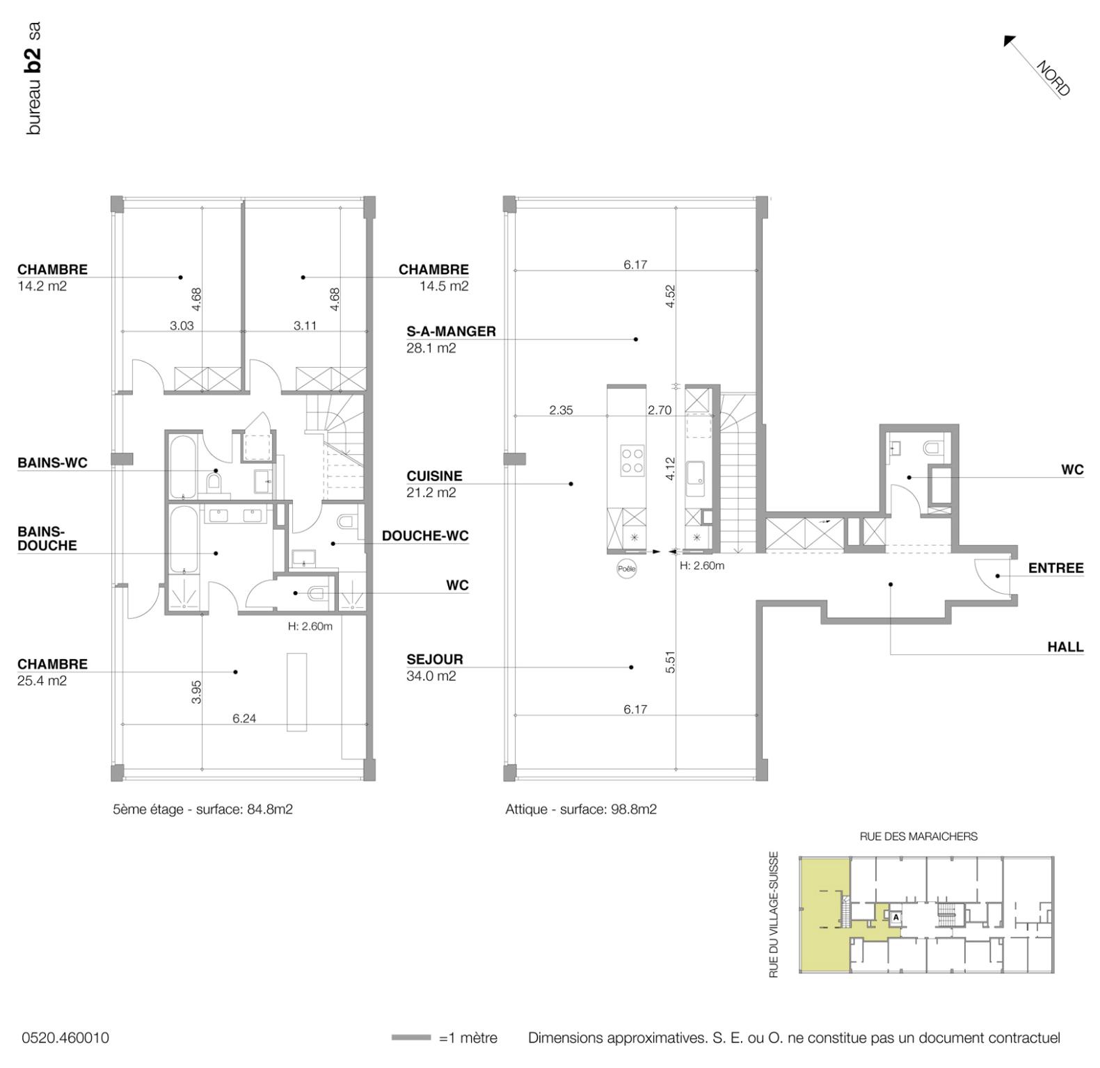
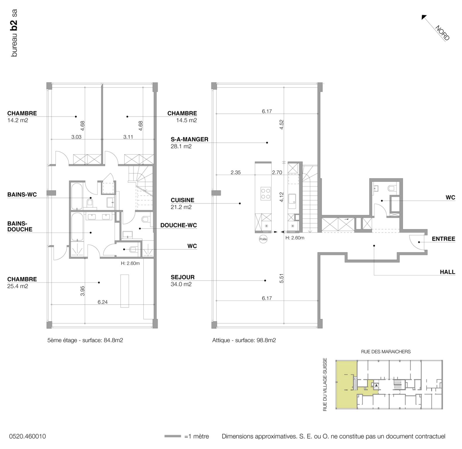
Ce magnifique duplex au 6ème étage avec terrasse sur le toit se distribue comme suit :
Partie jour : Hall d'entrée, vaste séjour avec cuisine ouverte sur la salle à manger également, wc visiteurs.
Partie nuit : Une chambre parentale avec dressing et salle de bains/douche avec wc attenante, deux chambres, une salle de bains avec wc, une salle de douche avec wc, petite buanderie.
Cave N°8 à disposition.
Deux places de parking extérieures : CHF 600.- en sus.
Charges mensuelles : CHF 338.- en sus.
Disponibilité : 15.11.2025.
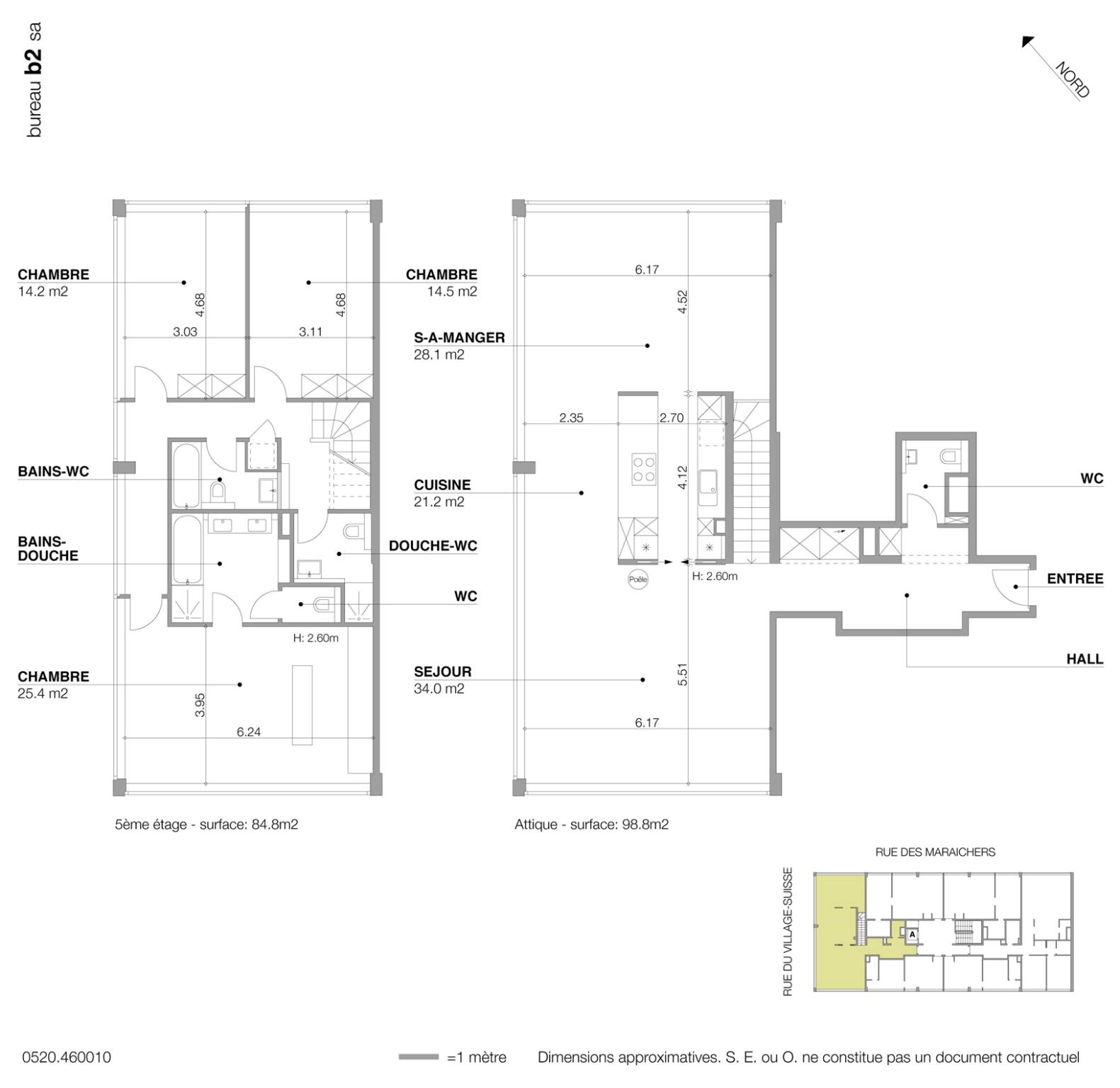
Ce magnifique duplex au 6ème étage avec terrasse sur le toit se distribue comme suit :
Partie jour : Hall d'entrée, vaste séjour avec cuisine ouverte sur la salle à manger également, wc visiteurs.
Partie nuit : Une chambre parentale avec dressing et salle de bains/douche avec wc attenante, deux chambres, une salle de bains avec wc, une salle de douche avec wc, petite buanderie.
Cave N°8 à disposition.
Deux places de parking extérieures : CHF 600.- en sus.
Charges mensuelles : CHF 338.- en sus.
Disponibilité : 15.11.2025.
Un duplex d’exception avec terrasse sur le toit
Des volumes d’exception pour un art de vivre unique avec ses 184 m2
Un quartier vibrant, pratique et parfaitement connecté
- Proche Transports publics
- Centre ville
- Commerces
- Restaurant(s)
- Ascenseur
- Digicode
- Parking extérieur
- Terrasse sur le toit
- Lave-linge
- Poêle suédois
- Cave
- Cuisine équipée
- Salle de bains / toilettes
- Salle de douche / toilettes
- WC visiteurs
- Lumineux
- Concierge
- Suite parentale
- Parc
- Salle de douche